Teknik Çizim Hizmetleri

Teknik Çizim Hizmetleri
Teknik Çizim Hizmetleri
Mimari ve iç mimari projelerin temel taşı olan teknik çizim, tasarımın uygulanabilirliğini ve tüm detaylarını ortaya koyan en kritik aşamalardan biridir. Nazsu İç Mimarlık olarak, projelerimizi yalnızca estetik açıdan değil; mühendislik, işlevsellik ve uygulama süreçleri açısından da kusursuz hale getirmek için teknik çizimlere büyük önem veriyoruz.
Teknik Çizim Nedir?
Teknik çizim; bir yapının, objenin veya sistemin ölçü, oran, malzeme ve yapım detaylarını gösteren ölçekli ve standartlara uygun profesyonel çizimlerdir.
Bu çizimler projelerin doğru anlaşılmasını, eksiksiz uygulanmasını ve tüm ekipler arasında ortak bir dil oluşmasını sağlar.
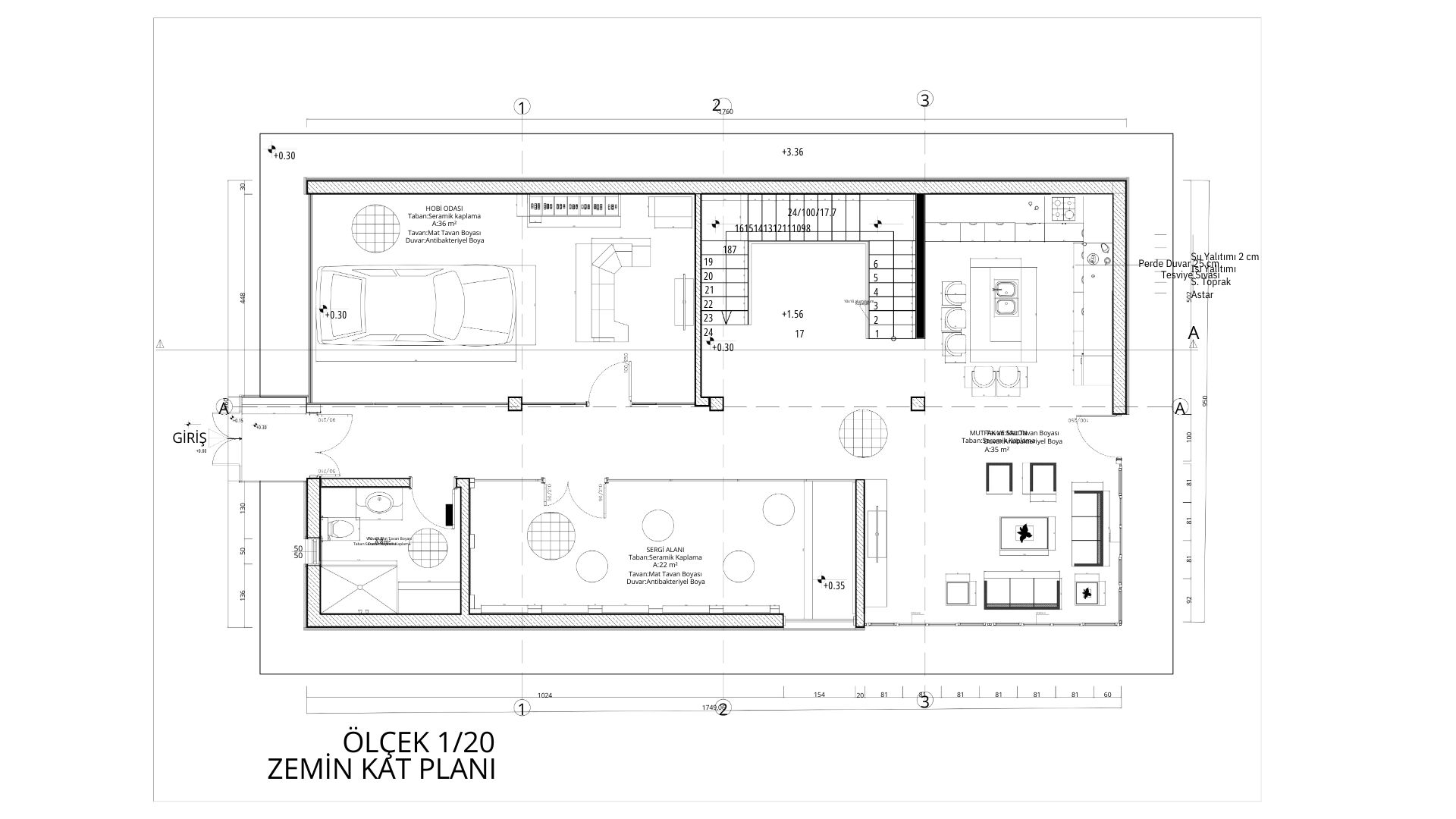
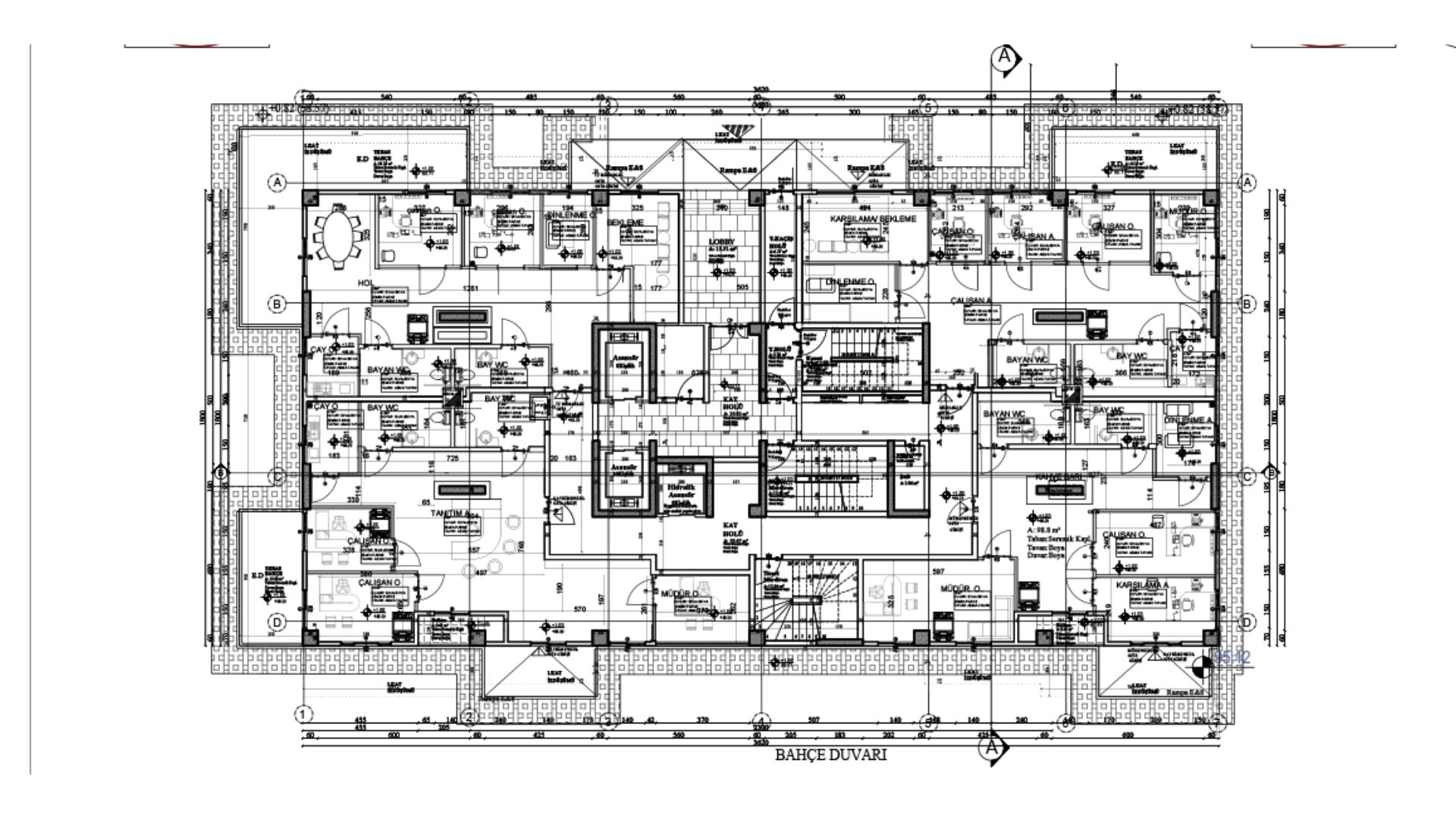
Kapsamımızda Yer Alan Teknik Çizimler
• Kat Planları – Mekânların işlevsel dağılımını, ölçülerini ve kullanım ilişkilerini gösterir.
• Kesit ve Görünüşler – Yapının iç ve dış mekân detaylarını teknik açıdan açık bir şekilde ortaya koyar.
• Kapı, Pencere ve Mobilya Detayları – Özel üretim ve standart elemanların net ölçü ve imalat bilgileri.
• Merdiven, Asma Tavan ve Zemin Kaplama Planları
• Elektrik ve Aydınlatma Yerleşim Planları – Priz, anahtar, aydınlatma ve tesisat konumlandırmaları.
Kullandığımız Yazılımlar
Nazsu İç Mimarlık olarak tüm teknik çizimlerimizi uluslararası standartlara uygun yazılımlarla hazırlıyoruz:
• AutoCAD – Hassas ve teknik 2D çizimler
• SketchUp – Hızlı modelleme ve mekân kurguları
• 3ds Max / V-Ray – Sunum ve görselleştirme amaçlı detaylı modelleme
Neden Teknik Çizim?
✔ Uygulama kolaylığı: Ustalar, mühendisler ve ekipler için net ve anlaşılır talimatlar sağlar.
✔ Hata önleme: Proje başlamadan önce oluşabilecek problemleri tespit eder.
✔ Resmi süreçlerde gereklilik: Ruhsat, onay ve yapım aşamalarının temel dokümanıdır.
✔ Maliyet ve zaman kontrolü: Uygulama sürecinde gereksiz harcamaların önüne geçer.
E-BÜLTEN SERVİSİ
E-Bülten servisi sayesinde tüm duyuru ve bilgilendirmelerden anlık olarak bilgi sahibi olabilirsiniz.
